Bella singola centrale con bei terrazzi a livello
- 249.000,00 Euro €
- Data pubblicazione: 13/07/2022
-
- Giarre, Catania, Italy
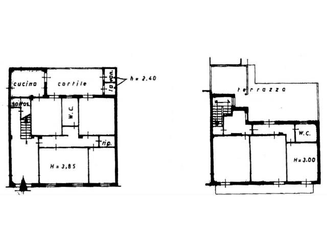
Stabile singolo composto da piano terra e primo piano vendo a Giarre nei pressi del servito v.le Libertà con ampi terrazzi a livello e con androne carrabile.
L'immobile è costituito da otto vani oltre accessori.
Ideale anche come ufficio o studio professionale.
| Tipo di Contratto | Vendita |
| Tipologia | Casa indipendente |
| Superficie m² | 240 |
| N. Locali | 8 |
| Bagni | 3 |
| Box auto | Sì |
| Posto auto | No |
| Piano | Terra e Primo |
| Ascensore | No |
| Stato | Buono |
| Riscaldamento | Autonomo |
| Classe energetica | In corso di attribuzione |
| Classe catastale | A/2 |



